Bergweg 2 A 3701 JK Zeist

Vraagprijs € 450.000 k.k.

Omschrijving

Nabij het centrum van Zeist bieden wij u aan deze royale bovenwoning.

Deze rechterhelft van een dubbel bovenhuis is bereikbaar middels een eigen opgang aan de achterzijde en heeft een ruim dakterras gelegen op het zuidoosten, lichte living met open keuken en een moderne badkamer en een drietal slaapkamers.

De woning is door de huidige eigenaar keurig onderhouden en is instap klaar, laat u verrassen!

Het centrum van Zeist is rijk aan een tal van winkels en horecavoorzieningen, de woning ligt boven een fysiopraktijk.
Daarnaast zijn uitvalswegen naar de omliggende plaatsen, evenals uitgestrekt groen op enkele minuten afstand.

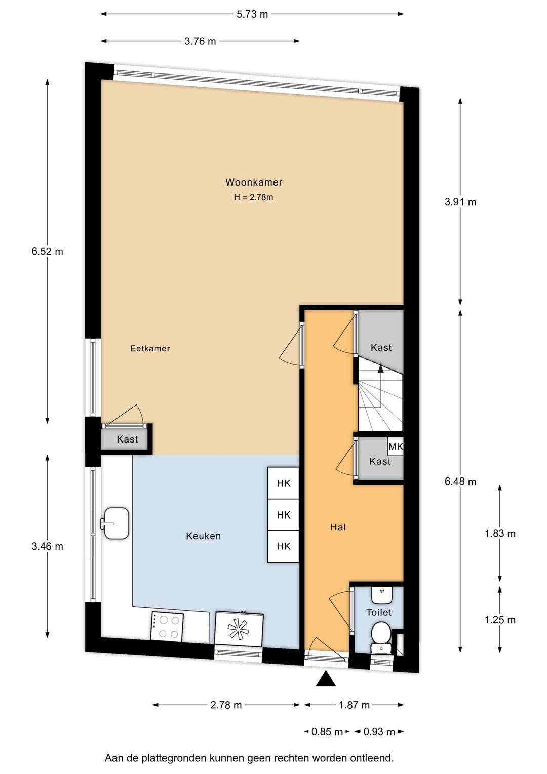
Globale indeling: Entree (bereikbaar via een metalen trap aan de achterzijde), hal met garderobe nis, toilet met fonteintje, meterkast, bergkast en trapopgang naar de verdiepingen. Zeer lichte L-vormige woonkamer voorzien van hoge plafonds, laminaatvloer en strak gestuukte wanden. Open keuken voorzien van veel kastruimte, inductiekookplaat met oven, RVS afzuigkap, vaatwasser en spoelbak. Vanuit de keuken tevens toegang tot het zonnige dakterras.
Eerste verdieping: Overloop, separate wasruimte, ruime slaapkamer aan de voorzijde voorzien van een dakkapel, dakraam en vaste kast, de twee overige kamers zijn voorzien van dakramen en een vaste kast(en). Modern uitgevoerde badkamer met douchecabine, 2e toilet en wastafelmeubel met waskom.
Zolderverdieping (bereikbaar d.m.v. een vaste trap naar boven): Ruime open zolderverdieping, thans in gebruik als bergzolder.
De mogelijkheid is aanwezig om hier een multifunctionele ruimte te realiseren.

Dakterras: Ruim opgezet, volop privacy biedend dakterras van ca. 25 m² gesitueerd op het zuidoosten.

Bijzonderheden:
– Royaal instapklaar bovenhuis verdeeld over drie woonlagen.
– Parkeergelegenheid aan de overzijde van de straat, hier is een royaal parkeerterrein en kunt u met een vergunning parkeren.
– Mogelijkheid tot het creëren van een multifunctionele ruimte op de zolderverdieping.
– Alle voorzieningen en gemakken van het centrum binnen handbereik.
– Maandelijkse bijdrage V.v.E. 100,-
– Gebruikersoppervlakte wonen ca. 106 m², inpandige ruimte 7 m².
– Meetrapport (NEN2580) en indelingstekeningen aanwezig.
– Bruto inhoud 421 m³.
– Aanvaarding in overleg.
– In de koopovereenkomst zal een niet zelfbewoningsclausule worden opgenomen.
– De woning is volledig vernieuwd en verbouwd in 2023/2024

Lees de volledige omschrijving

Contact

Van Ee Makelaars

Kenmerken

Algemeen

vraagprijs
€ 450.000 kosten koper
Status
Beschikbaar
Aanvaarding
In overleg
Soort woonhuis
Appartement, bovenwoning
Soort bouw
Bestaande bouw
Bouwjaar
1930
Ligging
In centrum

Oppervlakten en inhoud

Wonen
105 m²
Overige inpandige ruimte
6 m²
Perceel
100 m²
Inhoud
421 m³

Indeling

Aantal kamers
4 kamers (3 slaapkamers)
Aantal badkamers
1 badkamer
Badkamervoorzieningen
Douche, toilet, wastafel
Aantal woonlagen
3

Energie

Energielabel
C
Isolatie
Dakisolatie
Verwarming
Cv ketel
Warm water
Cv ketel
Cv-ketel
Nefit ( gestookt combiketel uit 2023, eigendom)

Kadastrale gegevens

Perceelnaam
Zeist H 4870
Oppervlakte
100 m²
Eigendomssituatie
Volle eigendom
Perceel
ZEI00-H-4870
Bekijk alle kenmerken

Overige media