Verkocht

Catharinaplaatjes 64 3453 SM De Meern

Verkocht

Omschrijving

Een unieke plek aan het water waar je in de zomer kan zwemmen, vissen of varen en in de winter kan schaatsen: iedere dag het ultieme vakantiegevoel.

Deze ruime HOEKWONING met vrij uitzicht aan de achterzijde maakt ook van binnen veel indruk met de speelse split-level leefruimte, keuken en badkamer, 4 grote slaapkamers en voldoende bergruimte. Dankzij het vele glas aan de achterzijde valt er de gehele dag veel zonlicht de woning binnen. Met een grote voortuin op het oosten en een terras aan het water op het westen kan je altijd zowel in de zon, als in de schaduw zitten. De auto parkeer je comfortabel op de privéparkeerplaats. De tussenwoning staat in een prettige, rustige en kindvriendelijke woonwijk met veel speeltuintjes en op loopafstand van diverse winkels, scholen, kinderopvang, horeca en sportverenigingen. Er is een snelle busverbinding naar het historische centrum van Utrecht/Utrecht Centraal en dankzij de nabijgelegen uitvalswegen (A2/A12) is de locatie tevens ideaal voor forenzen.

Indeling

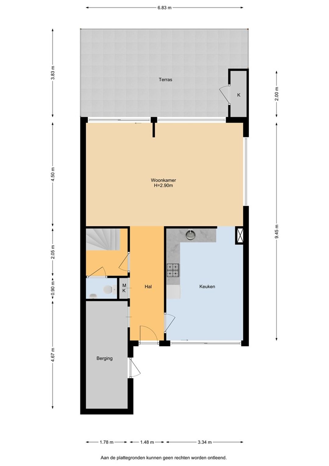
Begane grond:

Entree/hal; royale en lichte woonkamer met grote glazen schuifpui naar het ruime terras aan het water, bijzonder speelse en ruimtelijke uitstraling dankzij het hoge plafond en de splitlevel inrichting met een lager gelegen woonkamer en hoger gelegen woonkeuken; woonkeuken met schuifpui naar de voortuin, hoekkeuken uit 2001 voorzien van een gasfornuis met oven, afzuigkap, combimagnetron, vaatwasser en een koelkast; portaal met de trapopgang en toiletruimte; inpandige berging aan de voorzijde van de woning; de hele begane grond is voorzien van een massief houten vloer.

1e verdieping:

Overloop; vier ruime slaapkamers, badkamer (2001) ingericht met een ligbad, douche, radiator, tweede toilet en een wastafelmeubel met een enkele wastafel en een spiegel; berging met de opstelplaats voor de wasmachine/droger en CV-ketel.

2e verdieping:

Ruime bergvliering bereikbaar via een vlizotrap.

Tuin:

Grote en privacy gerichte voortuin op het oosten aangelegd met een betegeld terras, alle ruimte voor een lounge of grote eettafel en voor de kinderen voldoende ruimte om te spelen; terras aan het water met tegelvloer stenen berging, gunstige ligging op het westen.

Bijzonderheden:

– Gebruiksoppervlakte: 136 m²

– Inhoud: 501m³

– Bouwjaar: 2001

– Energielabel: B

– Hoekwoning met privéparkeerplaats

– Ligging aan het water, waardoor je in de zomer kan zwemmen, vissen of varen en in de winter schaatsen

– Open keuken met diverse inbouwapparatuur

– Splitlevel woonkamer met hoog plafond voor extra ruimtelijk geheel

– 4 slaapkamers

– Badkamer met ligbad en aparte regendouche

– Grote vliering voor veel opslagruimte

– Riante voortuin én zonneterras aan het water, gelegen op het oosten en het westen

– Eigen aanlegplaats voor een bootje mogelijk

– Dubbel glas; volledig geïsoleerd; energielabel B

– CV Ketel 2001, aan vervanging toe

-De gehele woning behoeft renovatie / herstel werkzaamheden

Oplevering in overleg kan snel.

Lees de volledige omschrijving

Contact

Van Ee Makelaars

Kenmerken

Algemeen

Status
Verkocht
Aanvaarding
In overleg
Soort woonhuis
Eengezinswoning, eindwoning
Soort bouw
Bestaande bouw
Soort dak
Bitumineuze dakbedekking
Ligging
Aan water, in woonwijk

Oppervlakten en inhoud

Wonen
126 m²
Overige inpandige ruimte
10 m²
Inhoud
501 m³

Indeling

Aantal kamers
6 kamers (4 slaapkamers)
Aantal badkamers
1 badkamer
Badkamervoorzieningen
Douche, ligbad, toilet, wastafel
Aantal woonlagen
3

Energie

Energielabel
B
Isolatie
Volledig geïsoleerd
Verwarming
Cv ketel
Warm water
Cv ketel

Buitenruimte

Tuin
Voortuin
Voortuin
38 m²
Ligging tuin
Zuidoost

Garage

Capaciteit
1 auto
Bekijk alle kenmerken