Verkocht

Christiaan Huygenslaan 6 3769 XW Soesterberg

Verkocht

Omschrijving

Moderne en fraai afgewerkte woning, gebouwd in 2002!

De woning heeft een zeer zonnige en fraai aangelegde tuin met achterom, zonneterras op het zuid-westen en een vrijstaande stenen berging welke bereikbaar is via een afgesloten achterom waardoor het uitermate veilig is voor (kleine) kinderen.

Er is meer dan voldoende parkeergelegenheid recht voor de deur en een lagere school bevindt zich letterlijk op een steenworp afstand. De kinderen kunnen hier nog op straat spelen door de dubbele stoep en de speeltuin van de basisschool op 50 meter afstand.
Voor de dagelijkse boodschappen kunt u terecht aan de, op loopafstand gelegen, Rademakerstraat.

Door de centrale ligging van Soesterberg zijn de centra van Zeist, Soest, Amersfoort en Utrecht goed bereikbaar, ook met openbaar vervoer. Universiteitscentrum “De Uithof” en het ziekenhuis UMC bevinden zich op fietsafstand.

De woning beschikt over 4 slaapkamers, een royale woonkamer (ca. 40m2) met openslaande tuindeuren en elektrische buiten zonwering over de volle breedte.

Indeling:
Entree, hal met modern toilet. Ruime en uitgebouwde woonkamer met elektrische haard en openslaande deuren naar de zonnige achtertuin. Aan de voorzijde bevindt zich de moderne en complete keuken, welke is voorzien van inbouwapparatuur en een plintboiler.

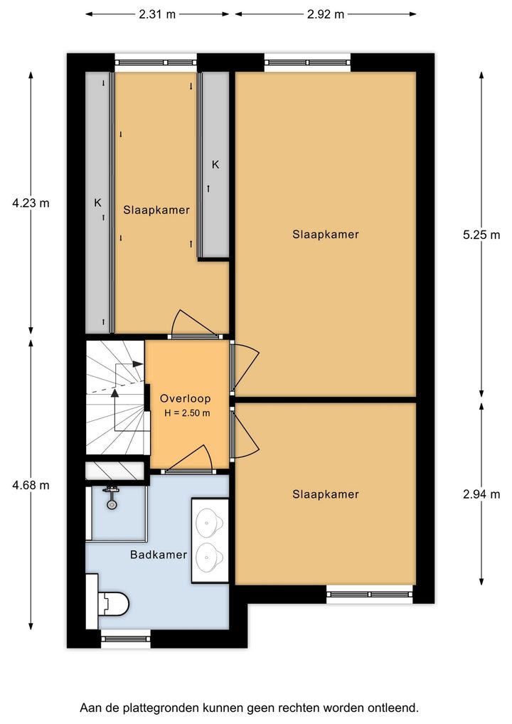
Eerste verdieping:
Overloop, drie, in grootte variërende slaapkamers en de moderne badkamer (2015) met toilet, douche en dubbele wastafel.

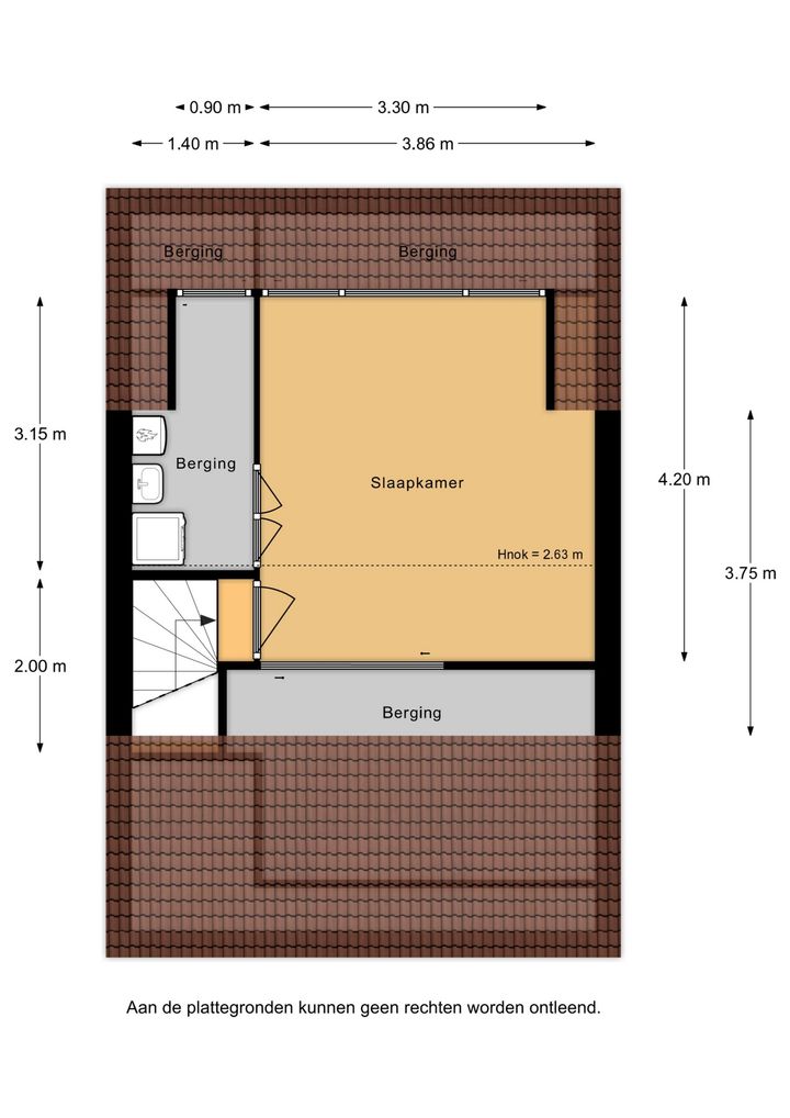
Tweede verdieping:
Vaste trap naar voorzolder met opstelling c.v.-ketel en aansluitingen voor wasmachine en droger. Ruime vierde slaapkamer met groot dakkapel uit 2017 en v.v. airco, grote berging achter het schuine gedeelte aan de voorzijde.

Bijzonderheden:
– Deze zeer goed onderhouden woning is voorzien van volledige isolatie.
– Energielabel A
– Warm terugwin- systeem aanwezig
– Alarminstallatie Woonveilig,
– Elektrische zonwering
.- CV-ketel CW5 uit 2021, jaarlijks onderhoud heeft plaatsgevonden.
– Woonoppervlak 128,5 m², inhoud 438,3 m3,
– De buurt is uitermate kindvriendelijk.

Lees de volledige omschrijving

Contact

Van Ee Makelaars

Kenmerken

Algemeen

Status
Verkocht
Aanvaarding
In overleg
Soort woonhuis
Eengezinswoning, tussenwoning
Soort bouw
Bestaande bouw
Bouwjaar
2002

Oppervlakten en inhoud

Wonen
128 m²
Externe bergruimte
7 m²
Perceel
182 m²
Inhoud
438 m³

Indeling

Aantal kamers
6 kamers (4 slaapkamers)
Aantal badkamers
1 badkamer
Badkamervoorzieningen
Douche, dubbele wastafel, toilet
Aantal woonlagen
4

Energie

Energielabel
A
Isolatie
Dubbel glas, volledig geïsoleerd
Verwarming
Cv ketel
Warm water
Cv ketel
Cv-ketel
CW5 ( gestookt combiketel uit 2021, )

Kadastrale gegevens

Perceelnaam
Soest E 5586
Oppervlakte
182 m²
Eigendomssituatie
Volle eigendom
Perceel
SOE00-E-5586

Buitenruimte

Tuin
Achtertuin, voortuin
Achtertuin
76 m²
Bekijk alle kenmerken

Overige media