Costerlaan 2 A 3701 JM Zeist

Vraagprijs € 495.000 k.k.

Omschrijving

Costerlaan 2a – Wonen in het hart van Zeist

Midden in het levendige centrum van Zeist ligt deze charmante woning aan de Costerlaan 2a. Een unieke plek waar rust en reuring perfect samenkomen. Hier woon je op loopafstand van winkels, gezellige horeca, culturele voorzieningen en het groen waar Zeist zo om bekendstaat.

De Costerlaan is een prettige, karaktervolle straat met een dorps gevoel, terwijl alle stadse gemakken letterlijk om de hoek liggen. Of je nu een kop koffie drinkt op het Emmaplein, een boodschap doet in het centrum of een wandeling maakt richting het bosrijke gebied van de Utrechtse Heuvelrug – alles is binnen handbereik.

Costerlaan 2a biedt een ideale basis voor wie centraal wil wonen zonder concessies te doen aan comfort en sfeer. Dankzij de uitstekende bereikbaarheid, zowel met openbaar vervoer als met de auto, is dit een perfecte plek voor starters, stellen of iedereen die het gemak van het centrum wil combineren met een fijne woonomgeving.

Kortom: een unieke kans om te wonen op een fantastische locatie in Zeist, waar alles samenkomt.

De woning biedt niet alleen verrassend veel ruimte binnen, maar op de 1e etage beschikt het ook over een compleet appartement v.v. woonkamer, keuken, badkamer en slaapkamer met toegang tot dakterras, ideaal als gastenverblijf, mantelzorgwoning of praktijk aan huis.
De woning is op de eerste etage is dan ook 10 jaar lang verhuurd geweest.

Indeling
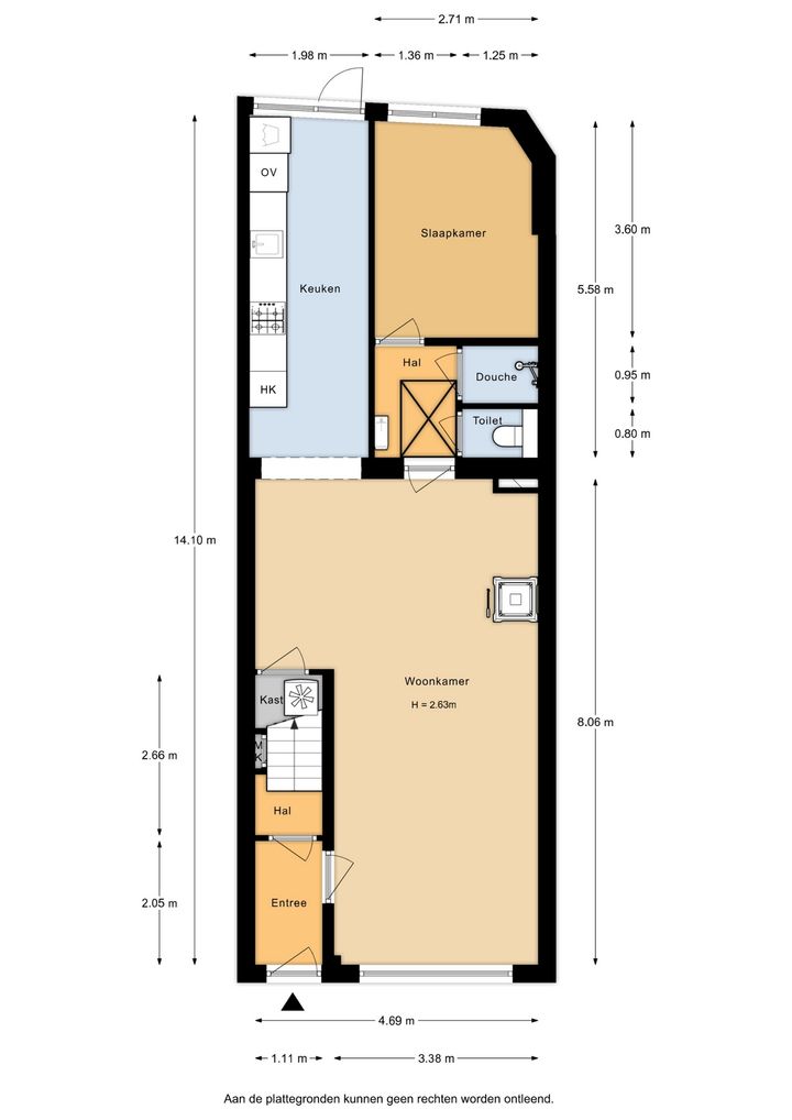
Begane grond: Entree met toegangsdeur naar trapopgang naar de eerste verdieping, woonkamer, keuken v.v. inbouwapparatuur met toegang tot de binnenplaats, hal naar slaapkamer, apart toilet en badkamer met douche. In de hal loopt u over een luik waaronder een vaste trap zit met toegang tot de kelder.
In de tuin staat een vrijstaande stenen / houten schuur welke voorzien is van een extra zolder.
Eerste verdieping: Complete woonlaag met woonkamer aan de voorzijde met dakkapel, slaapkamer met trappetje naar beneden en deur naar het dakterras, keukenblok, badkamer, houten trap naar de zolder met mogelijkheid tot het bouwen van een ruime extra kamer.

Bijzonderheden:
– Bouwjaar ca. 1905
– Energielabel C
– Centrale ligging nabij centrum, uitvalswegen en natuur
– Bouwkundig rapport is aanwezig
– In de koopovereenkomst zal een ouderdomsclausule worden opgenomen

Lees de volledige omschrijving

Contact

Van Ee Makelaars

Kenmerken

Algemeen

vraagprijs
€ 495.000 kosten koper
Status
Beschikbaar
Aanvaarding
In overleg
Soort woonhuis
Eengezinswoning, tussenwoning
Soort bouw
Bestaande bouw
Bouwjaar
1905

Oppervlakten en inhoud

Wonen
114 m²
Overige inpandige ruimte
20 m²
Gebouwgebonden Buitenruimte
16 m²
Externe bergruimte
9 m²
Perceel
111 m²
Inhoud
420 m³

Indeling

Aantal kamers
4 kamers (3 slaapkamers)
Aantal badkamers
2 badkamers
Badkamervoorzieningen
Douche, douche, wastafel
Aantal woonlagen
4

Energie

Energielabel
C
Verwarming
Cv ketel
Warm water
Cv ketel

Kadastrale gegevens

Perceelnaam
Zeist H 4668
Oppervlakte
111 m²
Eigendomssituatie
Volle eigendom
Perceel
ZEI00-H-4668

Buitenruimte

Tuin
Achtertuin, voortuin
Bekijk alle kenmerken

Overige media