Verkocht

Finsponglaan 48 3707 BS Zeist

Verkocht

Omschrijving

Gelegen in Park Finspong, een zeer ruim en opvallend licht appartement met energielabel A op de 1e etage met een balkon op het Noord – Westen en uitzicht over de fraai aangelegde tuin.

Vanuit gebouw C van “Park Finspong” bent u op korte afstand van alle dagelijkse voorzieningen. Via de Boulevard bent u binnen enkele minuten in het centrum van Zeist of op de snelweg A28.
Ook de bus stopt op deze Boulevard.

Als bewoner van Park Finspong kunt u gebruik maken van doordachte voorzieningen voor senioren. Het gehele complex is ingericht voor een beschermd en comfortabel woongenot.

Voor meer informatie over de faciliteiten, de dienstverlening en een preview van het wonen in Park Finspong verwijzen wij u naar de prachtig uitgebreide website www.finspong.nl

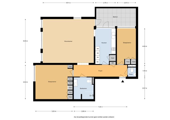
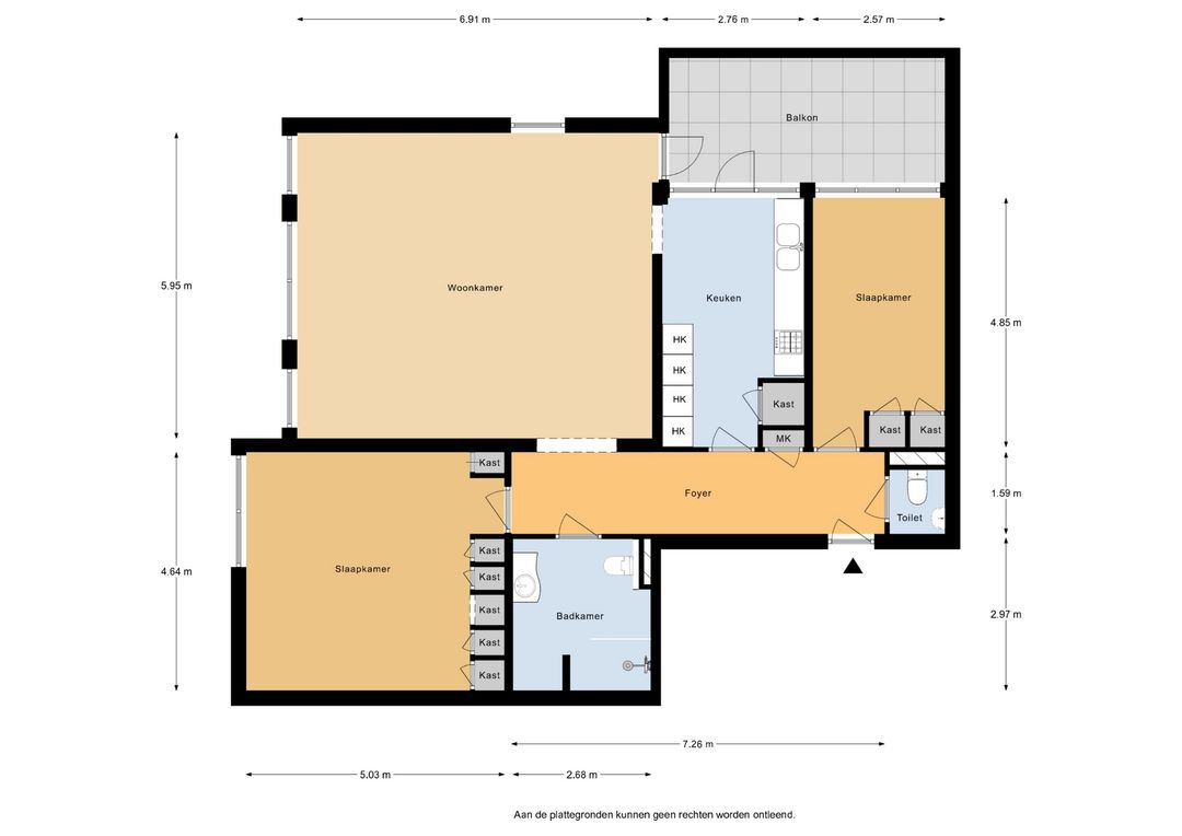
Indeling: Entree van het levensloopbestendige appartementengebouw (C), hal met elektrische deuropeners, lift en toegang tot de zeer ruime berging!

Indeling appartement:
Het eveneens levensloopbestendige appartement wat wij u mogen aanbieden is gelegen op de eerste etage, alle ruimten in het appartement zijn ruim, zo is er bijvoorbeeld een ruime hal met garderobe en apart toilet, woonkamer van 41m2 met deur naar balkon. De masterbedroom is 23m2 en voorzien van een prachtige kastenwand, de badkamer, ingericht met toilet, inloopdouche en wastafel plus de aansluitingen voor een wasmachine en droger. De halfopen keuken is voorzien van diverse inbouwapparatuur zoals een koel-/ vriescombinatie, vaatwasser, oven en een nieuwe Siemens oven en elektrische kookplaat. De keuken heeft een toegangsdeur tot het balkon van 13m2 welke tevens vanuit de woonkamer bereikbaar is.
Het appartement heeft aan de andere zijde nog een royale slaapkamer.

Er is in het complex een gezonde en actieve Vereniging van Eigenaren, de servicekosten zijn € 480,94 per maand inclusief zorg.
Onder de kosten vallen de onderstaande diensten, namelijk:
• De diensten van een woonzorgcoördinator. Deze adviseert en bemiddelt onder andere bij verkrijging van indicaties en vormen van thuiszorg. De woonzorgcoördinator levert zelf geen zorg.
• Tweemaal per week vuilophaaldienst bij het appartement.

Bijzonderheden :
– Woonoppervlakte 117 m2, inhoud 376m3, bouwjaar 1996
– Appartement is ideaal geschikt voor levensloopbestendig wonen
– Eigen parkeerplaats met extra grote carport
– Goed geïsoleerd en voorzien van dubbel glas
– Grote berging in het souterrain, bereikbaar met de lift
– Afgesloten fietsenstalling
– Rondom het gebouw is een prachtig park aangelegd
– Actieve en gezonde VvE
– Het complex heeft diverse voorzieningen als een kapper, pedicure, recreatieruimte en fysioruimte met veel sportactiviteiten
– Centraal gelegen nabij het centrum van Zeist
– Er zal een niet zelfbewoningsclausule worden opgenomen in de koopovereenkomst

Lees de volledige omschrijving

Contact

Van Ee Makelaars

Kenmerken

Algemeen

Status
Verkocht
Aanvaarding
In overleg
Soort woonhuis
Appartement, portiekflat
Soort bouw
Bestaande bouw
Bouwjaar
1996
Ligging
In bosrijke omgeving

Oppervlakten en inhoud

Wonen
117 m²
Gebouwgebonden Buitenruimte
13 m²
Externe bergruimte
13 m²
Inhoud
376 m³

Indeling

Aantal kamers
3 kamers (2 slaapkamers)
Aantal badkamers
1 badkamer
Badkamervoorzieningen
Douche, toilet, wastafel
Aantal woonlagen
1
Voorzieningen
Lift

Energie

Energielabel
A
Verwarming
Cv ketel
Warm water
Cv ketel

Kadastrale gegevens

Perceelnaam
Zeist H 4863
Eigendomssituatie
Volle eigendom
Perceel
ZEI00-H-4863
Bekijk alle kenmerken

Overige media