Onder bod

Joost Van Den Vondellaan 10 3705 JC Zeist

Onder bod

Omschrijving

Nabij het centrum en in de prachtige omgeving van de “Dichterswijk”, ligt deze multifunctionele woning.
Beider plantsoenen (Van Lennepplantsoen en het plantsoen aan de Joost van den Vondellaan) geven een gezellige sfeer. Hier mogen wij spreken van locatie, locatie, locatie!

De charmante twee-onder-een kapwoning (bouwjaar 1925) biedt de unieke kans om te worden omgetoverd tot een multifunctionele of meer-generatiewoning.
Door de garage en bijkeuken bij het woonhuis te betrekken, ontstaat een royaal woonoppervlak van circa 140 m².

Daarnaast bevindt zich achter in de tuin een vrijstaand stenen bijgebouw, perfect te gebruiken als kantoor aan huis, mantelzorgwoning of praktijkruimte.
Zo combineert u comfortabel wonen met de ruimte en flexibiliteit die bij uw levensstijl passen. Het bijgebouw beschikt over een eigen keuken, toilet, douche en eigen CV.

Spelende kinderen op de plantsoenen bepalen hier het dagelijkse straatbeeld.
Basisscholen en kinderopvang bevinden zich in de wijk zelf en alle overige belangrijke voorzieningen zijn op loopafstand te bereiken.

Hoewel de woning in een bosrijke omgeving ligt, zijn er rondom de tuin weinig bomen. Hierdoor geniet u van veel natuurlijke lichtinval in de woning én van volop zon in de tuin.

Indeling:

Begane grond:
Entree, gang, toegang tot kelder, doorzonwoonkamer met erker en massief eiken vloer, in het midden van de woonkamer staat een mooie houtkachel, halfopen keuken met inbouwapparatuur. Vanuit de keuken bereikt u via de hal, het toilet, de achtertuin, de ruime bijkeuken en de garage. Via de woonkamer loopt u, d.m.v. een schuifpui, rechtstreeks de zonnige achtertuin in. Aan de achtergevel is een grote overkapping gerealiseerd.

Eerste verdieping:
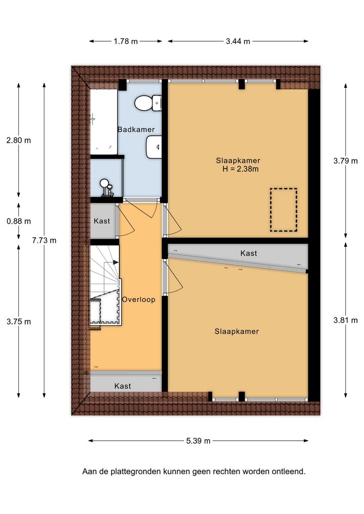
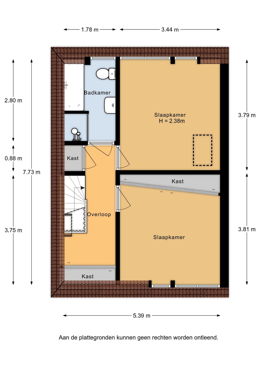
overloop met kastruimte, badkamer v.v. bad, douche, toilet en wastafel, twee ruime slaapkamers.

Zolder:
Via een vlizo trap komt u op de zolderverdieping met een grote zolderkamer voorzien van een dakkapel (mogelijkheid om slaapkamer te creëren) en een aparte bergruimte.

Bijzonderheden:

• Gelegen in een kindvriendelijke wijk met alle voorzieningen nabij: kinderopvang, basisscholen, supermarkt, tandarts, apotheek, huisarts en lokale winkels.
• Houtkachel functioneert prima
• Steens muren, in de garage half steens
• Parkeergelegenheid voor drie auto’s op eigen terrein.
• Grote garage met een ruime bijkeuken.
• Vrijstaand bijgebouw met eigen voorzieningen, geschikt voor meerdere doeleinden.

Lees de volledige omschrijving

Contact

Van Ee Makelaars

Kenmerken

Algemeen

Status
Onder bod
Aanvaarding
In overleg
Soort woonhuis
Eengezinswoning, 2-onder-1-kapwoning
Soort bouw
Bestaande bouw
Bouwjaar
1925

Oppervlakten en inhoud

Wonen
100 m²
Overige inpandige ruimte
41 m²
Externe bergruimte
34 m²
Perceel
390 m²
Inhoud
520 m³

Indeling

Aantal kamers
3 kamers (2 slaapkamers)
Aantal woonlagen
4

Energie

Energielabel
F
Verwarming
Cv ketel
Warm water
Cv ketel

Kadastrale gegevens

Perceelnaam
Zeist M 1370
Oppervlakte
390 m²
Eigendomssituatie
Volle eigendom
Perceel
ZEI00-M-1370

Buitenruimte

Tuin
Achtertuin, voortuin
Achtertuin
136 m²

Garage

Capaciteit
1 auto
Voorzieningen
Voorzien van elektra
Bekijk alle kenmerken

Overige media