Verkocht

Koppelweg 38 3704 GH Zeist

Verkocht

Omschrijving

Op een mooie centrale locatie in Zeist, hoek Griffensteijnselaan / Koppelweg ligt deze royale vrijstaande woning geheel vrij gelegen, goed onderhouden met een fraai aangelegde tuin op het westen met veel privacy op een perceel van 667 m² waar altijd wel een zonnige plek te vinden is.

De woning heeft een dubbele garage waarvan er 1 in gebruik is als bijkeuken. Zeer geschikt object voor bijvoorbeeld kantoor aan huis of het creëren van een extra slaapkamer annex badkamer / studio.

Indeling:

BEGANE GROND:

Hal, meterkast, toegang tot kelder, ruime woonkamer met authentieke schouw en houtkachel, moderne woonkeuken (2017) voorzien van inbouwapparatuur. Vervolgens de zij-entree, toilet en de bijkeuken met opstelplaats voor het witgoed. In de bijkeuken staan momenteel diverse sporttoestellen. Vanuit de bijkeuken is er toegang tot de garage en via een trap is de zolderruimte te bereiken waar momenteel een kantoor is gevestigd.

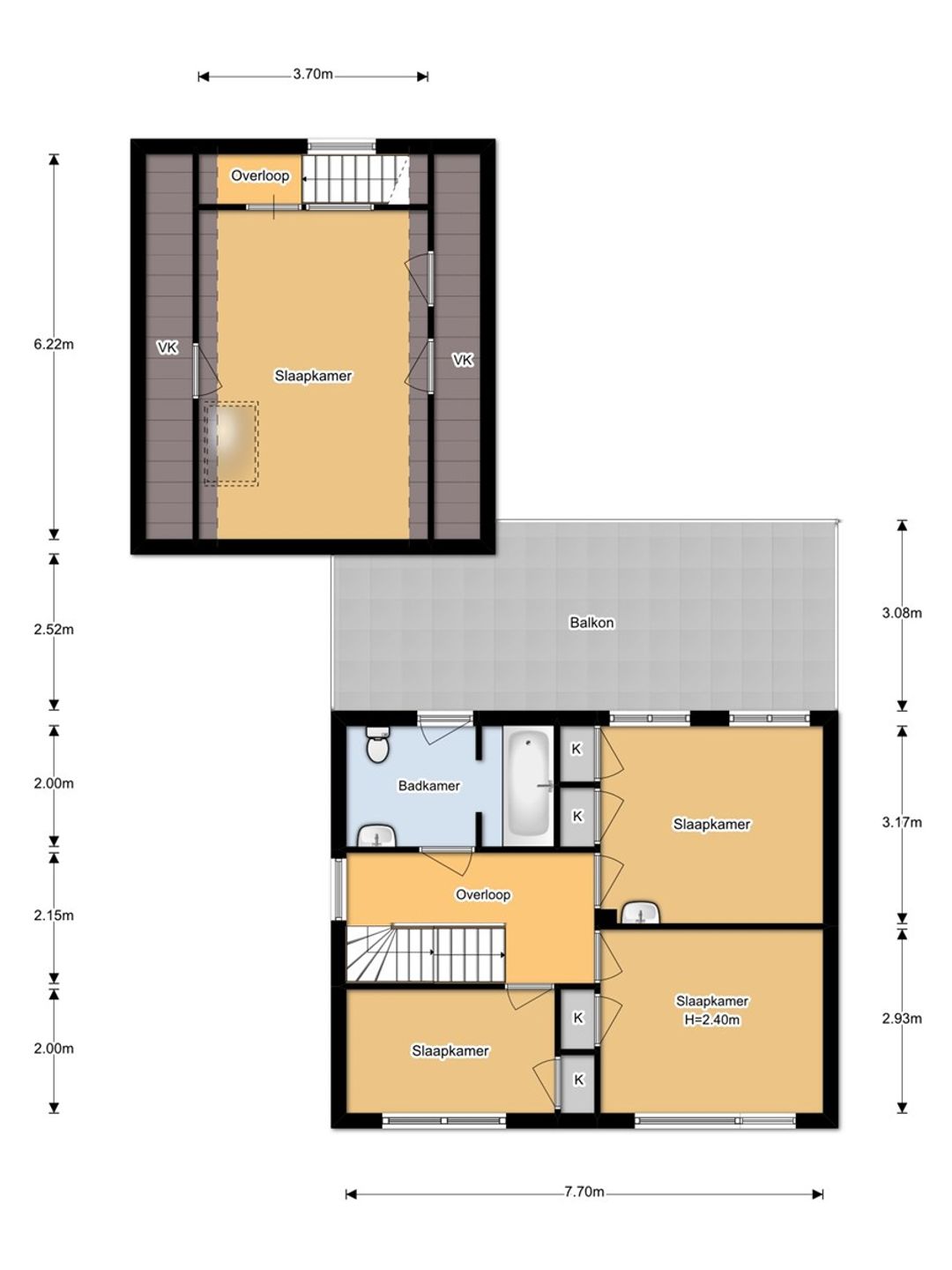
EERSTE VERDIEPING:

Overloop, drie slaapkamers, badkamer met douche, bad, wastafelmeubel en toilet.

TWEEDE VERDIEPING:

Voorzolder, 2 slaapkamers, bergruimte met opstelplaats cv-ketel, veel extra bergruimte.

Bijzonderheden:

Bouwjaar 1977

Perceel 667 m²

Woonoppervlakte: 200 m²

Gebruiksoppervlakte: 237 m2

Inhoud: 800 m³

De woning is goed geïsoleerd en heeft gedeeltelijk kunststof kozijnen.

De locatie is centraal gelegen op fietsafstand van het Universiteitscentrum de Uithof en het centrum van Utrecht. Gelegen op tientallen stappen van een busverbinding naar Utrecht Centraal. In de directe omgeving bevindt zich het binnenkort gerenoveerde winkelcentrum de Clomp, diverse scholen, kinderboerderij en sportfaciliteiten.

Interesse? van harte welkom voor een bezichtiging.

Lees de volledige omschrijving

Contact

Van Ee Makelaars

Kenmerken

Algemeen

Status
Verkocht
Aanvaarding
In overleg
Soort woonhuis
Eengezinswoning, vrijstaande woning
Soort bouw
Bestaande bouw
Bouwjaar
1977
Ligging
In woonwijk, open ligging

Oppervlakten en inhoud

Wonen
201 m²
Overige inpandige ruimte
37 m²
Gebouwgebonden Buitenruimte
23 m²
Inhoud
803 m³

Indeling

Aantal kamers
8 kamers (6 slaapkamers)
Aantal badkamers
1 badkamer
Badkamervoorzieningen
Ligbad, toilet, wastafel
Aantal woonlagen
4

Energie

Energielabel
C
Verwarming
Cv ketel
Warm water
Cv ketel

Buitenruimte

Tuin
Achtertuin
Achtertuin
280 m²
Ligging tuin
West

Garage

Capaciteit
1 auto
Voorzieningen
Voorzien van elektra

Parkeergelegenheid

Soort parkeergelegenheid
Openbaar parkeren
Bekijk alle kenmerken