U bent van harte welkom om deze woning te bezichtigen op donderdag 11 juli van 10:30 tot 12:30. Meldt u zich aan per mail zodat wij u de stukken kunnen toesturen?
Welkom in deze statige twee-onder-een-kapwoning aan de Kroostweg-Noord, met diepe achtertuin, zonnige ligging op het zuidwesten en een vrij uitzicht over prachtige monumentale bomen en de tuinen van fraterhuis St. Jozef.
Als u gaat voor locatie, locatie, locatie………. dan is dit de plek voor u en zeker een bezichtiging waard.
De Kroostweg-Noord is een sfeervolle straat zonder doorgaand verkeer.
De straat heeft gevarieerde jaren 20 en 30 woningen en ligt aan de noordwestkant van Zeist.
Het Utrecht Science Park is op fietsafstand bereikbaar en het winkelcentrum Vollenhove op loopafstand.
De woning is altijd verhuurd geweest en dient in zijn geheel gerenoveerd en verduurzaamd te worden.
De woning ligt royaal op het perceel en er is ruimte genoeg voor een extra garage en/of aanbouw. De huidige externe bergruimte is een kleine 30m2
Indeling woning:
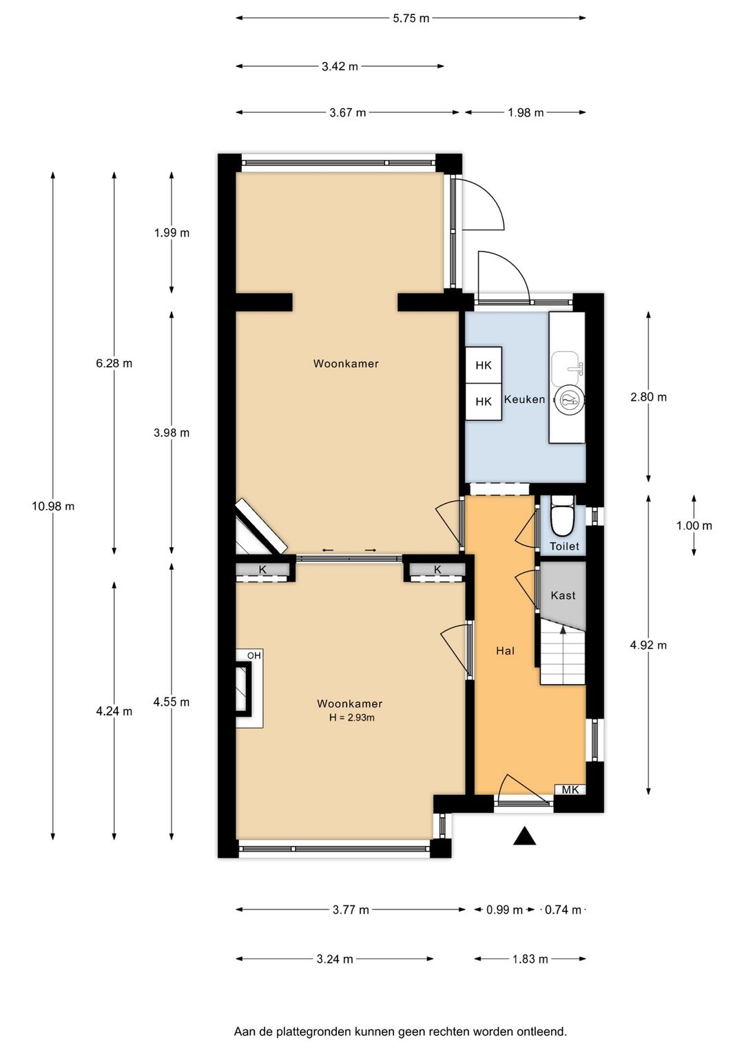
Begane grond: entree met hal, voorraadkast en toilet. Via de centrale hal loopt u de woonkamer binnen. De woonkamer is en-suite gesitueerd met originele schuifdeuren, ingezet met glas in lood. Op het oog vallen twee prachtige originele schouwen op, waar voorheen gaskachels hebben gestaan. De woonkamer is verder voorzien van een lichte serre met deur naar de tuin. De keuken is bereikbaar vanuit de hal en achterom vanuit de tuin.
Eerste verdieping:
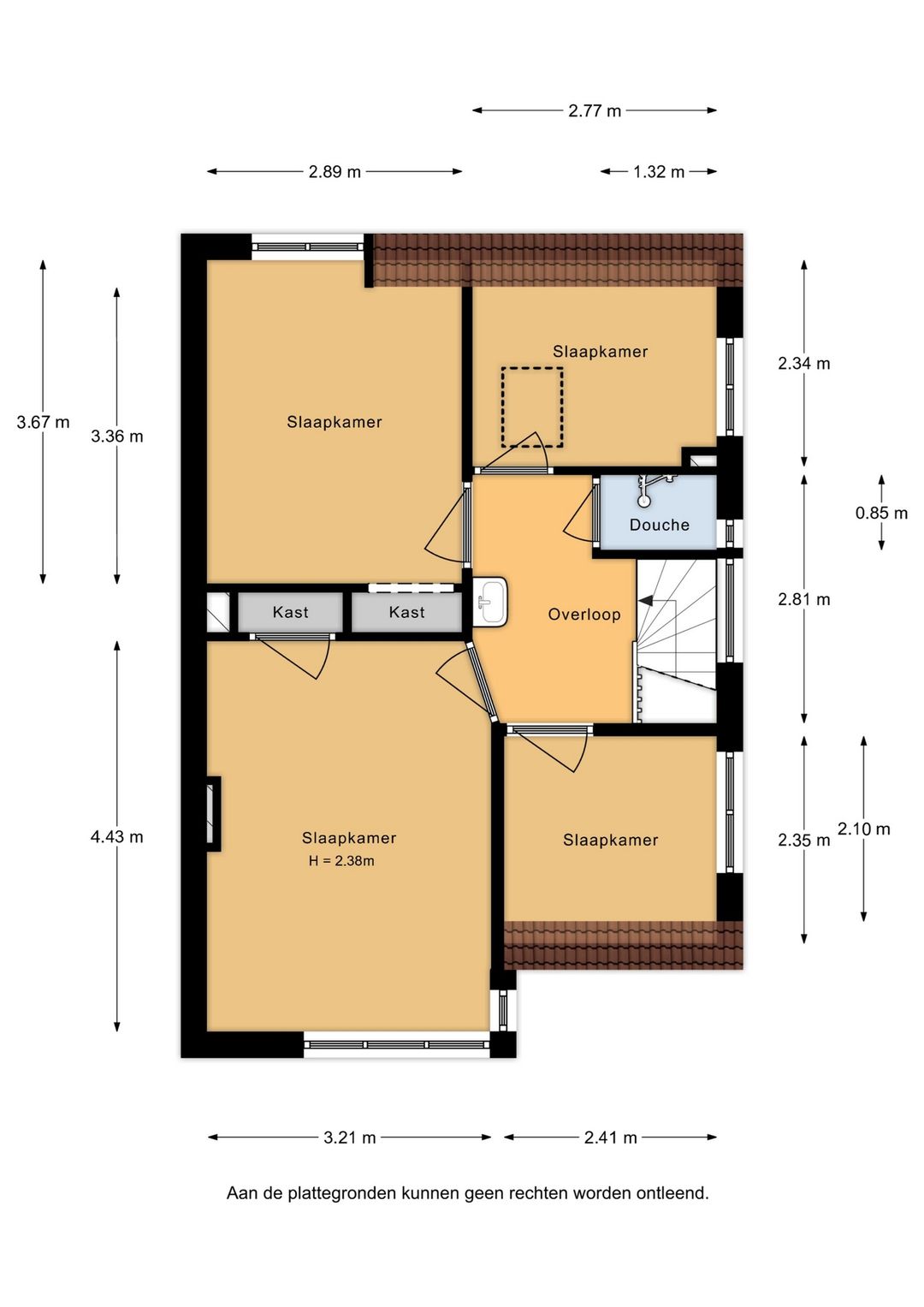
Overloop met vier slaapkamers en douche. Tussen de twee grote slaapkamers bevinden zich diepe inbouwkasten.
Zolder:
Vanuit de achterste slaapkamer is de zolder (ca. 15 m2), te bereiken via een schuiftrap. Samen met het isoleren van het dak, het toevoegen van twee ruime dakkapellen en een vaste trap zijn er nog twee slaapkamers te realiseren.
Bijzonderheden:
• Bouwkundig rapport aanwezig
• Bouwjaar 1924
• Woonoppervlakte is 102m² NEN ingemeten
• Perceeloppervlakte 460m²
• Energielabel G
• Oplevering in overleg, kan spoedig
In de koopovereenkomst worden onderstaande clausules opgenomen:
– Ouderdomsclausule
– Niet zelfbewoningclausule
– As -is- where-is clausule
– Bouwkundige keuring clausule
– Notarisclausule