Marmontweg 32 3711 BJ Austerlitz

Vraagprijs € 850.000 k.k.

Omschrijving

Vrijstaand wonen met karakter, volop mogelijkheden én een droom van een tuin aan de Marmontweg 32 in Austerlitz!

Welkom bij Marmontweg 32: een robuuste vrijstaande gezinswoning op een ruim perceel van ca. 800 m², gelegen in het hart van het charmante, historische Austerlitz. Ben je op zoek naar een huis waar je de ruimte hebt om je dromen waar te maken, of misschien samen met (groot)ouders, kinderen of dat eigen atelier of kantoor aan huis? Dan zou dit zomaar jouw nieuwe thuis kunnen worden!

Ruimte zat voor je gezin, je plannen, en voor alles wat er nog bij komt kijken…
De woning is levensloopbestendig met een bad- en slaapkamer op de begane grond.

Met een royale woonoppervlakte van 120 m² biedt deze vrijstaande woning meer dan genoeg plek om comfortabel samen te leven. Denk groot: hier kan je wonen én werken, meergeneratie-bewoning realiseren of mantelzorg mogelijk maken. Want naast het ruime huis vind je ook nog een flinke vrijstaande schuur, uitermate geschikt om tot kantoor, atelier of gastenverblijf te verbouwen. Hoe fijn is dat? Ook ideaal dus als je graag werk en privé wilt scheiden, maar niet iedere dag op en neer wilt naar een externe werkplek.

En dan die tuin! Een fantastisch diepe achtertuin om je vingers bij af te likken, met als absolute eyecatcher een monumentale walnotenboom die niet alleen direct sfeer geeft, maar ook zorgt voor verkoelende schaduw tijdens zwoele zomers. Hier zie je jezelf toch al zitten met vrienden of familie onder die boom alsof je in Zuid-Frankrijk bent aan een lange tafel met goed eten en fijne gesprekken

Een stevig fundament maar binnen wacht jouw moderniseringsslag
In 1987 gebouwd betekent bij deze woning één ding zeker: het zit constructief uitstekend in elkaar. Geen scheuren, geen funderingsproblemen een solide basis waarop je verder kunt bouwen letterlijk én figuurlijk.
De buitenzijde verdient zonder twijfel een dikke pluim.
Zoals het een jaren ’80 huis betaamt, zijn de gebruikte materialen kwalitatief hoogwaardig en is behoud altijd vooropgesteld.
Dat gezegd hebbende, mag je binnen nog helemaal losgaan. Het interieur is eenvoudig, dus er ligt een kans om de woning volledig naar eigen smaak te verduurzamen én te moderniseren. Nieuwe keuken, frisse badkamer, vloerverwarming, zonnepanelen. Pak het allemaal aan en maak er een duurzame gezinswoning van, helemaal klaar voor de toekomst.

Indeling :
Begane grond: via de voordeur aan de linker zijgevel kom je in een ruime hal met toilet, bad – en slaapkamer aan de voorzijde van de woning. Woonkamer met houtkachel en schuifpui naar het terras en de achtertuin. Semi open keuken en een bijkeuken.
1e verdieping:
Grote ruimte en ruime kamer aan de achterzijde.
Met een dakkapel aan beide zijden van de woning vergroot je het woonoppervlak met 50 m2 en creëer je ruimte voor vier slaapkamers en een ruime badkamer.

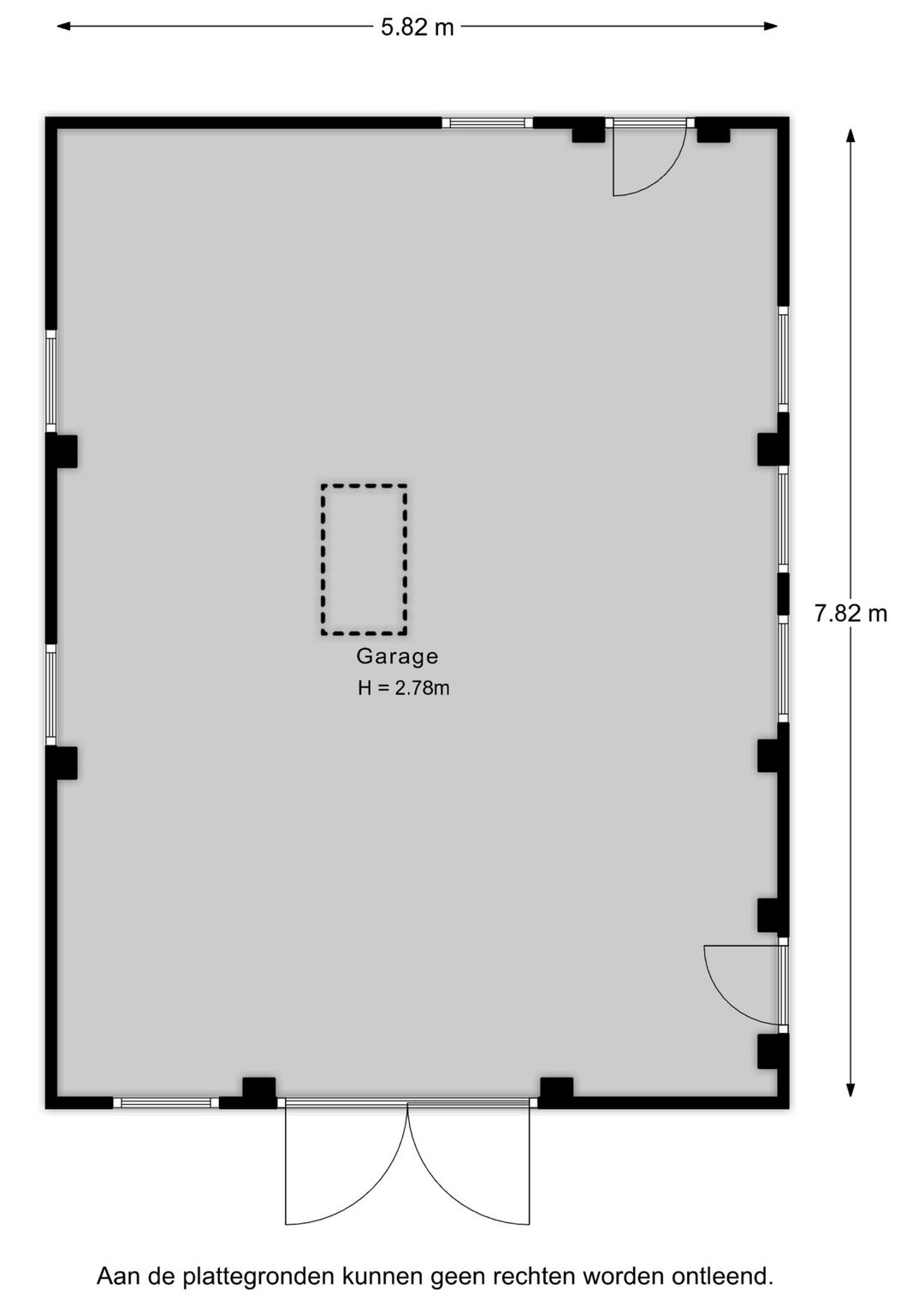
Bijgebouw:
Garage voor meerdere auto’s. Bouwkundig is het bijgebouw opgebouwd uit een enkelsteens muur en bestaat het dak uit golfplaten van asbesthoudend materiaal.

Genieten van rust, natuur én dorpssfeer in Austerlitz
Austerlitz is een dorpje vol charme, historie én bosrijke natuur.
Ideaal voor gezinnen of actieve ouderen die de combinatie van rust en sportiviteit zoeken.
Je woont hier met het Nationaal Park Utrechtse Heuvelrug in je achtertuin: heerlijke wandelingen, fietsen of hardlopen begint praktisch bij je voordeur.

Proef de historie die in het dorp voelbaar aanwezig is, met het gezellige Dorpsplein en de unieke lanenstructuur, ontstaan na het vertrek van het Franse leger in de 19e eeuw.
Geen wonder dat het hier heerlijk wonen is, de sfeer is gemoedelijk, de voorzieningen kloppen en via de uitvalswegen ben je zo in Zeist, Utrecht of Amersfoort.

Laat je fantasie de vrije loop
Stel je eens voor…………ontbijten met uitzicht op je eigen bomen, lunchen op het zonnige terras, kinderen die eindeloos buitenspelen of kleinkinderen die logeren in hun eigen ‘tuinhuis’. En wanneer zonsondergang nadert, zit je samen met je geliefden onder die prachtige walnotenboom. Is het geen plaatje?
Kortom: Marmontweg 32 is een huis voor wie durft te dromen en het beste van comfort, stijl en vrijheid zoekt.

Ga jij de uitdaging aan om deze plek helemaal eigen te maken?

Tot ziens aan de Marmontweg 32 in Austerlitz!

Lees de volledige omschrijving

Contact

Van Ee Makelaars

Kenmerken

Algemeen

vraagprijs
€ 850.000 kosten koper
Status
Beschikbaar
Aanvaarding
In overleg
Soort woonhuis
Eengezinswoning, vrijstaande woning
Soort bouw
Bestaande bouw
Bouwjaar
1987

Oppervlakten en inhoud

Wonen
119 m²
Externe bergruimte
45 m²
Perceel
793 m²
Inhoud
453 m³

Indeling

Aantal kamers
3 kamers (2 slaapkamers)
Aantal badkamers
1 badkamer
Badkamervoorzieningen
Douche
Aantal woonlagen
2

Energie

Energielabel
C
Verwarming
Cv ketel
Warm water
Cv ketel

Kadastrale gegevens

Perceelnaam
Zeist D 2065
Oppervlakte
793 m²
Eigendomssituatie
Volle eigendom
Perceel
ZEI00-D-2065

Buitenruimte

Tuin
Tuin rondom

Garage

Capaciteit
1 auto
Voorzieningen
Voorzien van elektra
Bekijk alle kenmerken

Overige media