Verkocht

Meester Ansinkweg 21 3711 DA Austerlitz

Verkocht

Omschrijving

De in 2008 gebouwde tussenwoning met een woonoppervlak van 90 m2.

De tuin ligt op het Zuid- Westen en is gedeeltelijk v.v. een houten overkapping / veranda.

Deze woning staat in de kindvriendelijke wijk “Villa Verte” Austerlitz. De goed bekend staande basisschool staat op loopafstand. Voor kinderen een ideale uitvalsbasis om zorgeloos te spelen.

Het prachtige buurtschap van Zeist is uitermate geschikt voor mensen die in de omgeving van de bossen willen wonen. Mountainbikers en wandelaars hebben de bossen van Austerlitz al gevonden. Eén van de populairste mountainbike trail van Nederland komt langs de bekende Pyramide van Austerlitz, het monument uit 1800, de tijd van Napoleon. Meester Ansink was een leraar en weldoener in de periode 1880. Detail is dat hij de schoonzoon was van Meester Gramser, waar ook een straat naar vernoemd is.

Austerlitz is een zeer gemêleerde gemeenschap waar rust, ruimte en vrijheid hoog in het vaandel staan.

Er bestaat een sterke verbondenheid tussen jong en oud waarbij sport en het verenigingsleven kenmerkend zijn.

In de wijk “Ville Verte” wonen overwegend gezinnen met kinderen in alle leeftijdscategorieën.

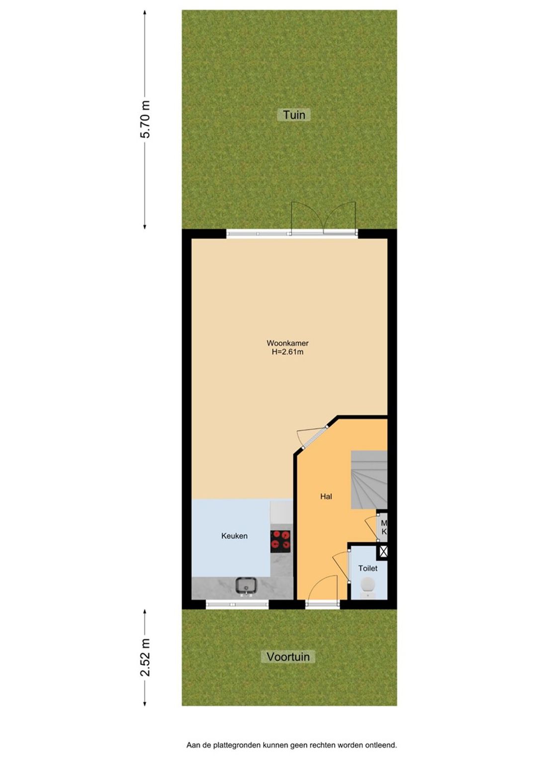
Indeling:

Entree, hal, toilet, trapopgang en toegang tot de ruime woonkamer en open hoek keuken voorzien van inbouwapparatuur.

Vanuit de woonkamer is middels openslaande deuren de tuin te bereiken.

1e etage

Overloop, 1 zeer ruime slaapkamers, mogelijkheid voor 2e slaapkamer, ruime badkamer met douche, wastafel en toilet. Berg/was ruimte met wasmachine en droger aansluiting.

2e etage

Zolder via vlizotrap bereikbaar met mogelijkheid voor extra slaapkamer en plaatsing van een vaste trap.

Heeft u interesse in deze woning, waar u zo in kan ? Neem dan contact op met van Ee Makelaars 030-6953222 info@vaneemakelaars.nl

Lees de volledige omschrijving

Contact

Van Ee Makelaars

Kenmerken

Algemeen

Status
Verkocht
Aanvaarding
In overleg
Soort woonhuis
Eengezinswoning, tussenwoning
Soort bouw
Bestaande bouw
Bouwjaar
2008
Ligging
Aan bosrand, in bosrijke omgeving, in woonwijk

Oppervlakten en inhoud

Wonen
88 m²
Overige inpandige ruimte
10 m²
Inhoud
381 m³

Indeling

Aantal kamers
3 kamers (1 slaapkamer)
Aantal badkamers
1 badkamer
Badkamervoorzieningen
Douche, toilet, wastafel
Aantal woonlagen
3

Energie

Verwarming
Cv ketel
Warm water
Cv ketel

Buitenruimte

Tuin
Achtertuin
Achtertuin
29 m²
Ligging tuin
Zuidoost

Parkeergelegenheid

Soort parkeergelegenheid
Openbaar parkeren
Bekijk alle kenmerken