Onder optie

Molenweg 50 303 3708 SG Zeist

Onder optie

Omschrijving

********* MOLENWEG TE ZEIST OPEN HUIS ELKE DONDERDAG TUSSEN 10:30 UUR EN 12:00 UUR *******
Vriendelijk verzoeken wij om u vooraf aan te melden voor het open huis!

55+ APPARTEMENTEN: Let op: Het betreft een seniorencomplex, derhalve nemen wij alleen reacties in behandeling van geïnteresseerden met een leeftijd van 55 jaar en ouder. Aanvragen die niet voldoen aan de gestelde leeftijdsgrens worden niet in behandeling genomen.

In 2025 zijn drie volledig gerenoveerde appartementen opgeleverd, alle appartementen zien er hetzelfde uit als op de foto’s en hebben dezelfde afmetingen.

Het appartement:
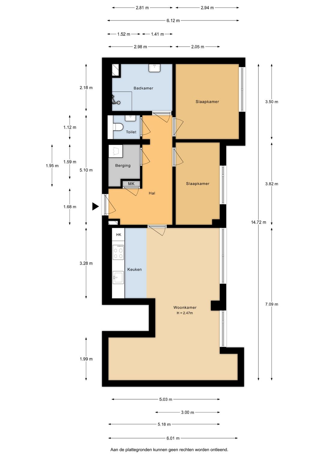
Mooi driekamer appartement voorzien van een ruime woonkamer met open keuken, twee slaapkamers, badkamer met grote douche en wastafel, apart toilet en berging met wasmachine- en drogeraansluiting.

Dit appartement is gelegen op het noordwesten en kijkt uit op de voorkant van het complex en heeft een gebruiksoppervlakte van ca. 80 m2.

Service- en stookkosten:
Maandelijks bedraagt het voorschot servicekosten € 130,00 en het voorschot stookkosten € 165,00. In dit bedrag zit inbegrepen de verwarming en de elektra in de woning en algemene ruimten, radio en tv, Het waterverbruik, schoonmaakkosten van de algemene ruimten, tuinonderhoud, glasverzekering, glasbewassing en een vaste bijdrage ten behoeve van de huismeester.

Wonen in Mirtehof en Bladerkroon:
Het wooncomplex Mirtehof & Bladerkroon omvat 150 senioren appartementen (55+)met verschillende appartementen types welke verdeeld zijn over 8 woonlagen. De woningen zijn uitermate geschikt voor zelfstandige bewoning en indien gewenst kunt u ’thuis zorg’ afnemen. De woningen zijn drempelloos en per lift te bereiken. Het complex is gelegen in een prachtige bosrijke omgeving op zevenhonderd meter van het centrum van Zeist, in de wijk Kerckebosch/Hoge Dennen. Een rustige, fijne en veilige buurt waar veel wandel-, fiets- en recreatiemogelijkheden zijn.

Zorg en voorzieningen
Bewoners van de Mirtehof & Bladerkroon wonen zelfstandig, maar met de benodigde voorzieningen voor handen. Misschien heeft u op dit moment (nog) geen thuiszorg nodig maar krijgt u daar in de nabije toekomst wel mee te maken, dan is zorg en ondersteuning binnen handbereik. Tegen een vergoeding kunt u verschillende diensten afnemen bij verschillende zorg aanbieders. Het gebruik van een 24-uur alarmeringssysteem kan worden geleverd hetgeen continu een gevoel van veiligheid geeft. Niet alleen voor de bewoner maar ook een gerust gevoel voor de familie.

Openbare ruimtes:
De begane grond in het complex is voorzien van een ruim restaurant waar verse maaltijden worden geserveerd. Daarnaast fungeert het restaurant als recreatie ruimte waar een krant of een boek gelezen kan worden en een centrale plek waar gezelligheid dagelijks aanwezig is. Tevens zijn gasten – zoals familie en vrienden – meer dan welkom, ook om van een maaltijd in het restaurant te genieten.

Faciliteiten en service:
In het appartementencomplex worden meerdere faciliteiten en diensten geboden zoals een restaurant waar u 6 dagen per week vers kan eten, een fysiotherapeut, een pedicure en is er een wasserette aanwezig op de vijfde en zesde etage met grote wasmachines en drogers, waar bewoners gebruik van kunnen maken.

Mogelijkheden samengevat:
Zelfstandig wonen met eventuele zorg binnen handbereik
Alarmopvolging is mogelijk tegen een vergoeding
Alle etages bereikbaar met de lift
Geschikt voor echtparen
Mogelijkheden tot ontmoeting en recreatie
Veel faciliteiten in en om het appartementencomplex
Voor zelfstandig wonende ouderen, leeftijd indicatie vanaf 55 jaar
Wandel-, fiets- en recreatiemogelijkheden in de nabije omgeving.

Huurvoorwaarden:
De voorwaarden die wij stellen aan u als nieuwe huurder van een woning in ons beheer kunt u op de website van Schep Vastgoed terugvinden. In het hoofdmenu bovenaan de site onder het kopje “FAQ & downloads” kunt u meer informatie vinden over deze voorwaarden.
Aan de inhoud van deze informatie is de grootst mogelijke zorg besteed. Alle informatie is nadrukkelijk onder voorbehoud. Hieraan kunnen geen rechten worden ontleend.
Op deze website c.q. ten aanzien van deze advertentie is geen geautomatiseerde tekst- en datamining toegestaan.

Lees de volledige omschrijving

Contact

Van Ee Makelaars

Kenmerken

Algemeen

Status
Onder optie
Aanvaarding
In overleg
Soort woonhuis
Appartement, portiekwoning
Soort bouw
Bestaande bouw
Bouwjaar
1974
Ligging
Aan bosrand, in bosrijke omgeving

Oppervlakten en inhoud

Wonen
80 m²
Inhoud
175 m³

Indeling

Aantal kamers
3 kamers (2 slaapkamers)
Aantal badkamers
1 badkamer
Badkamervoorzieningen
Douche, wastafel
Aantal woonlagen
1
Voorzieningen
Glasvezel kabel, lift

Energie

Energielabel
B
Bekijk alle kenmerken

Overige media