Verkocht

Nelson Mandelalaan 112 3707 KP Zeist

Verkocht

Omschrijving

Moderne Hoekvilla met vrij uitzicht op de Boulevard en het Zeister centrum op loopafstand, een luxe afwerking niveau, royale leefruimtes, mogelijkheid voor praktijk aan huis zijn enkele in het oog springende karakteristieken van deze stadsvilla met inpandige garage. Kenmerkend voor dit type woningen, genaamd Mirabeau, is de hoeveelheid ruimte over vier bouwlagen (210m²), het wooncomfort, het hoge afwerking niveau en de functionele indeling met de vele mogelijkheden voor wat betreft wonen en eventueel praktijk/kantoor aan huis en de mooie ligging, loopafstand van de winkels, openbaar vervoer (bushalte), scholen en wandelbossen. De woning beschikt over een ruim terras met goede zonligging en parkeer gelegenheid op eigen terrein, het huidige souterrain / garage zijn 2 inpandige kamers waarvan 1 slaapkamer.

De woning heeft de volgende indeling:

——————————————–

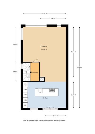
1e Woonlaag:

Ruime entree, modern toilet met fonteintje, fijne woonkamer met aansluitend een ruim zonnig terras. Aansluitend aan de woonkamer is een kleine doch handige pantry

2e Woonlaag:

Overloop, lichte woonkeuken/eetkamer met brede eiken vloerdelen en doorloop naar de luxe open keuken met kook/spoel eiland en voorzien van diverse inbouwapparatuur en openslaande deuren met een Frans balkon.

3e Woonlaag:

Overloop, modern 2e toilet, c.v. kast, ouderslaapkamer met openslaande deuren met Frans balkon, ouderslaapkamer en 2 aparte slaapkamers, een zonneterras en compleet uitgevoerde badkamer.

Souterrain:

Het souterrain is vanaf buiten alsmede binnendoor bereikbaar en heeft de volgende indeling: hal, inpandige living, waskamer, slaapkamer met openslaande deuren. Hier zijn 2 kamers gesitueerd, is ook zeer geschikt voor een kantoor/praktijk aan huis.

Bijna bij de achterdeur begint het gezellige centrum van Zeist met een compleet winkelbestand en uitgebreide culturele & horeca voorzieningen. De fraaie natuurgebieden zuidoostelijk van Utrecht, Universiteitscentrum de Uithof met het UMC en NS-station Driebergen-Zeist zijn op plezierige fietsafstand. Nabijgelegen uitvalswegen zorgen voor uitstekende autoverbindingen met o.a. Utrecht, De Bilt en Amersfoort.

Bijzonderheden:

——————-

* Bouwjaar 1998

* Verwarming d.m.v. cv-ketel,

* Onderhoud binnen en buiten uitstekend, recent geheel gemoderniseerd

* Woonoppervlakte ca. 210 m2 ( inclusief Souterrain)

* Inhoud ca. 600 m3

Lees de volledige omschrijving

Contact

Van Ee Makelaars

Kenmerken

Algemeen

Status
Verkocht
Aanvaarding
In overleg
Soort woonhuis
Herenhuis, hoekwoning
Soort bouw
Bestaande bouw
Bouwjaar
1998
Ligging
In bosrijke omgeving, in centrum, vrij uitzicht

Oppervlakten en inhoud

Wonen
205 m²
Gebouwgebonden Buitenruimte
33 m²
Inhoud
668 m³

Indeling

Aantal kamers
6 kamers (4 slaapkamers)
Aantal badkamers
1 badkamer
Badkamervoorzieningen
Douche, wastafel
Aantal woonlagen
3

Energie

Verwarming
Cv ketel
Warm water
Cv ketel
Cv-ketel
Remeha (gas gestookt uit 2018, eigendom)

Buitenruimte

Tuin
Zonneterras
Zonneterras
27 m²
Ligging tuin
Zuidoost
Bekijk alle kenmerken