Pater Andreoliweg 3 3711 DB Austerlitz

Vraagprijs € 749.000 Vrij op naam

Omschrijving

Onder de rook van Zeist ligt dit prachtige buurtschap Austerlitz, volledig omzoomd door bossen van het Staatsbosbeheer.

Zeist / Austerlitz ligt centraal in Midden Nederland met goede verbindingen richting A12 en A28 en op fietsafstand van NS station Driebergen – Zeist.

Pater Andreoliweg – Vrijstaand en levensloopbestendig wonen in alle rust.

De woning wordt (semi) casco opgeleverd en is op de begane grond voorbereid voor de realisatie van een extra slaapkamer en badkamer, wat nog meer flexibiliteit biedt voor de toekomst en de levensloopbestendigheid daarvan.

Aan het einde van een rustige weg ligt deze recent gebouwde vrijstaande woning uit 2022 inclusief carport. Een van drie vergelijkbare nieuwbouwwoningen, gelegen aan een mandelige (gezamenlijke) toegangsweg.

De woning biedt u volop privacy en rust – perfect voor wie comfortabel en toekomstbestendig wil wonen.

De woning is op de begane grond volledig levensloopbestendig, met een royale woonkamer.

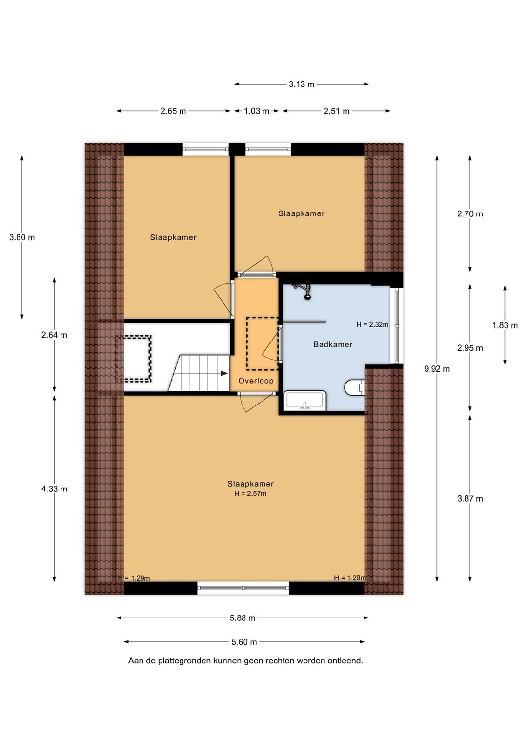
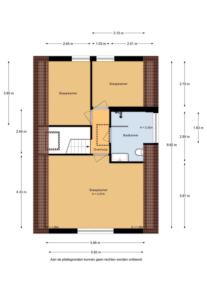
Op de eerste verdieping zijn drie slaapkamers, waarvan de master bedroom ca. 24 m2 groot is.
De badkamer v.v. inloopdouche, wastafelmeubel en toilet.

Door middel van een vlizotrap bereikt u de bergzolder / vliering.

Gebouwd volgens traditionele bouwmethodes, maar met de nieuwste technieken op het gebied van duurzaamheid.

De nog in te richten keuken geeft u de vrijheid om deze volledig naar eigen smaak en gebruiksgemak te realiseren.

Buiten vindt u een heerlijke, besloten royaal tuin / terras van ca. 68 m2 op het zuidwesten, ideaal voor lange avonden zonnen in volledige privacy.

Kortom, een comfortabele, duurzame woning op een unieke, rustige locatie, klaar om geheel naar eigen inzicht ingericht te worden.

Bijzonderheden:

• Gasloos
• Voorzien van een warmtepomp van het merk Daikin, tevens voorzien van koelfunctie
• Vloerverwarming
• Volledig CO₂-neutraal
• Energielabel A+++
• Nummer 3 is het laatste huis in doodlopende straat
• Alle drie zijn het vergelijkbare vrijstaande nieuwbouwwoningen
• Parkeren op eigen terrein
• Begane grond levensloopbestendig
• Traditioneel gebouwd in 2022
• Keuken zelf in te richten naar eigen inzicht
• Besloten ruim terras / tuin op het zuidwesten
• Ruimte op de begane grond voorbereid voor bad- en slaapkamer

Over Austerlitz:

Het dorp Austerlitz ontstond in 1804 met de komst van het Franse leger van Napoleon. Voor Kamp Austerlitz werd de Woudenbergseweg aangelegd, later verlengd tot Woudenberg. Na het vertrek van het leger vestigden zich bos- en landbouwers, en ontstond het dorp rond drie boerderijen, een pomp (nu Dorpsplein) en de Schoolweg. Dit gebied vormt nog steeds een waardevolle stedenbouwkundige eenheid.

Het dorp kreeg twee kernen: tussen de Austerlitzseweg en de Oude Postweg, en rond de waterput. Het strakke wegenpatroon herinnert aan het legerkamp. De sfeer wordt bepaald door bosranden, het plein en tuinen. Later werden de linten geleidelijk bebouwd en na de Tweede Wereldoorlog kwamen er kleinschalige nieuwbouwbuurten.

Austerlitz is een buurtschap van Zeist, prachtig gelegen in de bossen. Populaire ANWB-fietsroutes, mountainbike-trails en wandelpaden leiden naar de beroemde piramide uit de Napoleontische tijd. Je vindt er heidevelden, zandverstuivingen, schapen en een echte waterbron. De omliggende bossen zijn van Staatsbosbeheer, dat ze succesvol terugbrengt in oude stijl. De kans op verdere bebouwing is zeer klein.

Lees de volledige omschrijving

Contact

Van Ee Makelaars

Kenmerken

Algemeen

vraagprijs
€ 749.000 vrij op naam
Status
Beschikbaar
Aanvaarding
In overleg
Soort woonhuis
Eengezinswoning, vrijstaande woning
Soort bouw
Bestaande bouw
Bouwjaar
2022
Ligging
In bosrijke omgeving

Oppervlakten en inhoud

Wonen
152 m²
Overige inpandige ruimte
17 m²
Gebouwgebonden Buitenruimte
11 m²
Perceel
246 m²
Inhoud
613 m³

Indeling

Aantal kamers
5 kamers (4 slaapkamers)
Aantal badkamers
1 badkamer
Badkamervoorzieningen
Douche, toilet, wastafel
Aantal woonlagen
3

Energie

Energielabel
A+++
Isolatie
Dubbel glas, volledig geïsoleerd
Verwarming
Warmtepomp

Kadastrale gegevens

Perceelnaam
Zeist D 3177
Oppervlakte
246 m²
Eigendomssituatie
Volle eigendom
Perceel
ZEI00-D-3177

Buitenruimte

Tuin
Achtertuin, zijtuin
Achtertuin
67 m²
Ligging tuin
Zuidwest
Bekijk alle kenmerken

Overige media