Verkocht

Samuel De Marezhof 51 3953 CH Maarsbergen

Verkocht

Omschrijving

Samuel de Marezhof 51 te Maarsbergen

Bent u op zoek naar een moderne & nette woning waar u zo in kunt trekken?

n de bosrijke omgeving van Maarsbergen ligt deze moderne instapklare tussenwoning in de rustige en kindvriendelijke nieuwbouwwijk De Marezhof. De woning is in 2016 opgeleverd en ligt aan de rand op loop afstand van het Nationaal Park Utrechtse Heuvelrug, met haar uitgestrekte bossen en vele wandel- en fietspaden. Belangrijk voordeel van De Marezhof is ook de uitstekende bereikbaarheid vanuit Utrecht, Zeist en Amersfoort, elk circa 20 minuten verwijderd. In deze regio zijn veel mogelijkheden voor uitstapjes naar onder meer monumenten en attracties. Een heerlijke tuin op het zuidwesten maakt de woning extra aantrekkelijk.

Indeling:
Begane grond:
Entree, hal met laminaatvloer, meterkast, trapopgang en modern betegelde toiletruimte met zwevend toilet en fonteintje.
De tuingerichte woonkamer is voorzien van een schuifpui en er is een praktische trapkast aanwezig voor extra bergruimte. Daarnaast is de woonkamer fraai afgewerkt met een laminaatvloer en is er veel licht aanwezig door de grote raampartijen alsmede de gunstige ligging op de zon.
De moderne lichtte keuken bevindt zich aan de voorzijde van de woning en is voorzien van een Lvormig keukenblok met o.a. een 5-pits gaskookplaat, RVS-afzuigkap, koel-/ vriescombinatie, combimagnetron/oven en vaatwasser.

In de tuin, gesitueerd op het zuidwesten, is een heerlijke zithoek onder een overkapping
gerealiseerd. De overkapping is gebouwd aan de houten berging en de sfeervolle achtertuin is daarnaast voorzien van een mooi perk met verschillende planten en bloemen en een tegelwerk terras met een zonwering over de gehele breedte. De houten berging aan de achterzijde van de tuin is ruim van afmeting en o.a. voorzien van elektra en praktische achterom.

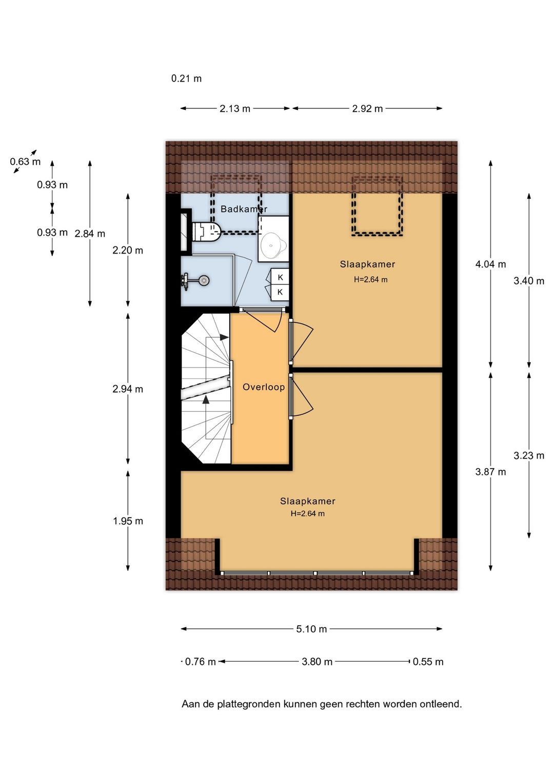
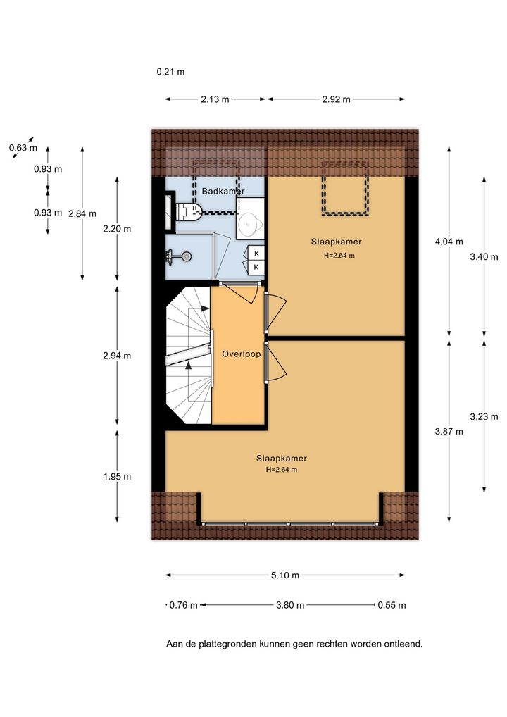
1e Verdieping:
Overloop voorzien van een laminaatvloer en trapopgang.
Op de 1e Verdieping zijn twee ruime slaapkamers gesitueerd die allebei zijn voorzien van een laminaatvloer. De slaapkamer aan de voorzijde is voorzien van een dakkapel met elektrische rolluiken en de nodige bergruimte en de slaapkamer aan de achterzijde is voorzien van een Velux-dakraam.
De badkamer is modern afgewerkt en is o.a. voorzien van een douchecabine met
thermostaatkraan, zwevend toilet, wastafel met bijbehorend meubel en een Velux-dakraam.

2e Verdieping:
De voorzolder met was/stookruimte (wasmachine aansluiting, omvormer, mechanische
ventilatie, Intergas cv-ketel) en de derde slaapkamer met een dakraam en bergvliering maken de woning compleet.


Bijzonderheden:
• Bouwjaar 2016;
• Woonoppervlakte bedraagt ca. 97m2, perceeloppervlakte bedraagt ca. 154m2 en de inhoud bedraagt ca. 348m3;
• Er is vloerverwarming aanwezig in de gehele woning;
• Volledig geïsoleerd, energielabel A
• Gelegen aan een rustig hofje;
• 4 Zonnepanelen op het dak;
• Ruime houten berging met lessenaarsdak;
• Nabij de snelweg A12 en op korte afstand van station Maarn.

Kortom: Deze woning is uitermate geschikt voor het moderne gezin, die houdt van een actief buitenleven, groen en ruimte zoekt om te wonen, op een goed bereikbare plek.

Lees de volledige omschrijving

Contact

Van Ee Makelaars

Kenmerken

Algemeen

Status
Verkocht
Aanvaarding
In overleg
Soort woonhuis
Eengezinswoning, tussenwoning
Soort bouw
Bestaande bouw
Bouwjaar
2016

Oppervlakten en inhoud

Wonen
97 m²
Externe bergruimte
10 m²
Perceel
154 m²
Inhoud
348 m³

Indeling

Aantal kamers
4 kamers (3 slaapkamers)
Aantal badkamers
1 badkamer
Badkamervoorzieningen
Douche, toilet
Aantal woonlagen
3

Energie

Energielabel
A
Isolatie
Volledig geïsoleerd
Verwarming
Cv ketel, vloerverwarming geheel
Warm water
Cv ketel

Kadastrale gegevens

Perceelnaam
Utrechtse Heuvelrug E 796
Oppervlakte
154 m²
Eigendomssituatie
Volle eigendom

Buitenruimte

Tuin
Achtertuin, voortuin
Achtertuin
55 m²
Ligging tuin
Zuidwest
Bekijk alle kenmerken

Overige media