Verkocht

Strausslaan 28 3706 BP Zeist

Verkocht

Omschrijving

Zeer nette, moderne tussenwoning in geliefde Componistenwijk – Zeist

Ben je op zoek naar een instapklare gezinswoning met energielabel A op een rustige, groene en kindvriendelijke locatie? Dan is deze volledig opgeknapte tussenwoning in de geliefde Componistenwijk echt iets voor jou!

Deze smaakvol gemoderniseerde woning beschikt over een sfeervolle, tuingerichte woonkamer met open keuken (2019), vier ruime slaapkamers, een verzorgde achtertuin op het noordwesten en een hoogwaardige afwerking. Dankzij de geplaatste dakkapellen zijn de eerste en tweede verdieping opvallend ruim.

De woning ligt in een bosrijke en rustige omgeving, ideaal voor gezinnen. In de buurt zijn meerdere speeltuinen te vinden en op loopafstand bevinden zich een winkelcentrum, openbaar vervoer en uitvalswegen richting Utrecht, De Uithof en omliggende plaatsen.

Indeling:

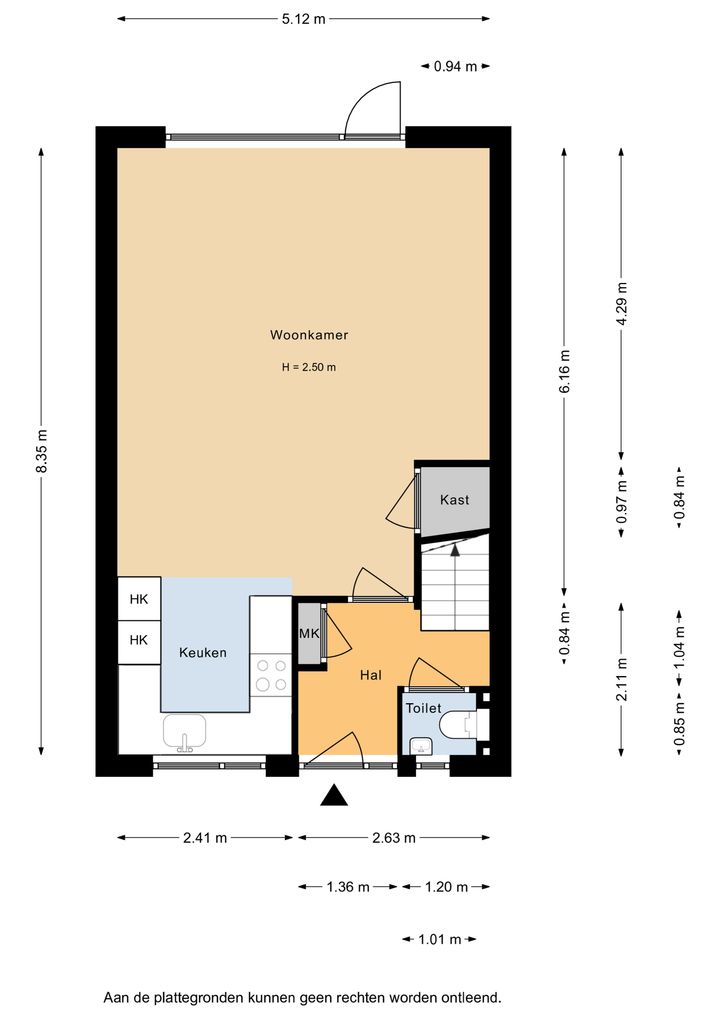
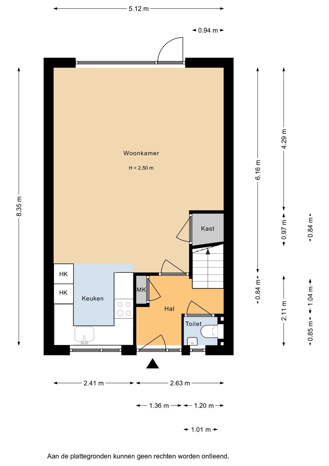
Begane grond
Entree/hal, modern toilet, lichte woonkamer met grote raampartijen en toegang tot de achtertuin. Luxe open keuken uit 2019, voorzien van diverse inbouwapparatuur en uitgevoerd in moderne kleurstellingen. Door een slimme toepassing hebben verkopers gezorgd voor extra opbergruimte in de provisiekast.
Eerste verdieping
Overloop, drie slaapkamers waarvan twee extra ruim door de dakkapel over de gehele achterzijde. Nette badkamer met douche, toilet en wastafel.
Tweede verdieping
Grote zolderkamer met dakkapel aan de voorzijde en dakraam aan de achterzijde. Praktische berging met inbouwkasten, opstelplaats voor wasmachine/droger en CV-ketel.

Bijzonderheden:
• Volledig instapklaar
• Open keuken (2019) met luxe inbouwapparatuur
• Dakkapellen op de 1e en 2e verdieping
• Nieuwe CV-ketel (2024)
• Alle ramen voorzien van horren
• Ruime en beschutte achtertuin op het noordwesten
• Extra hoge kruipruimte
• Rustige ligging in kindvriendelijke wijk
• Op loopafstand van winkels en OV, nabij Utrecht en De Uithof

Ideaal voor gezinnen die op zoek zijn naar comfort, ruimte en rust met alle voorzieningen binnen handbereik. Maak snel een afspraak voor een bezichtiging – deze woning wil je niet missen!

Lees de volledige omschrijving

Contact

Van Ee Makelaars

Kenmerken

Algemeen

Status
Verkocht
Aanvaarding
In overleg
Soort woonhuis
Eengezinswoning, tussenwoning
Soort bouw
Bestaande bouw
Bouwjaar
1994

Oppervlakten en inhoud

Wonen
99 m²
Externe bergruimte
6 m²
Perceel
120 m²
Inhoud
353 m³

Indeling

Aantal kamers
5 kamers (4 slaapkamers)
Aantal badkamers
1 badkamer
Badkamervoorzieningen
Douche, toilet, wastafel
Aantal woonlagen
3

Energie

Energielabel
A
Verwarming
Cv ketel
Warm water
Cv ketel

Kadastrale gegevens

Perceelnaam
Zeist N 5261
Oppervlakte
120 m²
Eigendomssituatie
Volle eigendom
Perceel
ZEI00-N-5261

Buitenruimte

Tuin
Achtertuin, voortuin
Achtertuin
50 m²
Bekijk alle kenmerken

Overige media