Verkocht

Tureluurlaan 32 3722 EC Bilthoven

Verkocht

Omschrijving

Vriendelijk verzoeken wij u alleen per mail te reageren op deze woning.

Rustig gelegen, met het bos bijna in de achtertuin, ruim gezinshuis (gebruiksoppervlakte 138 m2) met vijf slaapkamers, tuin op het zuidwesten zonder achterburen en slechts op 10 autominuten van Utrecht!

De woning heeft een plezierige lichtinval door de grote raampartijen aan de voor- en achterzijde en een gunstige zonligging.

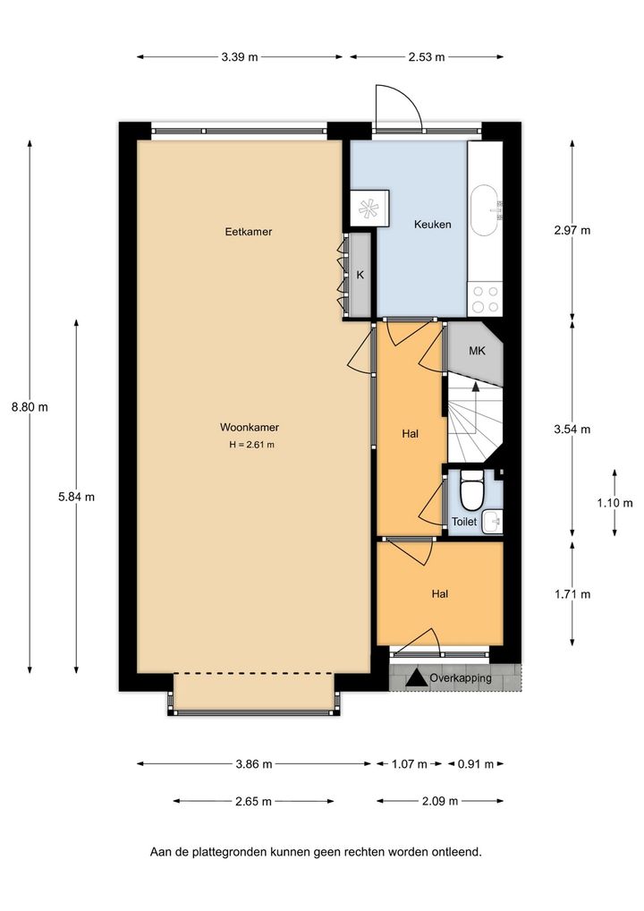
Indeling:
Begane grond:
Vestibule, hal, toilet, trapkast met elektrische groepenkast, lichte woonkamer met deur naar de tuin, dichte keuken, deur naar de achtertuin zonder achter in kijk.
Er is een achterom met directe toegang tot plantsoen en het bos (het Noord-Houdringe bos).
In de achtertuin staat een stenen berging van ca. 8m2.

In de tuin is veel privacy doordat u geen achterburen heeft en uitkijkt op de mooie bosrijke omgeving.

Eerste verdieping:
Op deze verdieping zijn drie slaapkamers, waarvan 2 zeer ruim en een badkamer v.v. ligbad, wasmachine-aansluiting, wastafel en tweede toilet.

Tweede verdieping:
Middels een vaste trap is de tweede verdieping bereikbaar met ruime slaapkamer met extra bergruimte achter de knieschotten. Klein kamertje (hier zou ook een 2e badkamer gerealiseerd kunnen worden of als werkkamer gebruikt kunnen worden).
Op de voorzolder is extra bergruimte.
Verder is er op deze verdieping nog een berging met cv-installatie.

Locatie:
Zeer kindvriendelijke en rustige buurt. In de straat komt alleen bestemmingsverkeer. Een speelveld en wandelbos bevinden zich op steenworp afstand van het huis, verder is het centrum van Bilthoven met een ruim winkelaanbod, de basis- en middelbare scholen, sportfaciliteiten en NS- en busstation op 5 fietsminuten afstand.
Diverse uitvalswegen zijn ook op korte afstand (10 autominuten). Parkeermogelijkheden: Er zijn voldoende gratis parkeermogelijkheden in de straat en directe omgeving.

Een koper kan de woning naar eigen smaak moderniseren en verduurzamen.

Kenmerken:
– royale gebruiksoppervlakte van 138 m2;
– kindvriendelijke omgeving met de natuur in de achtertuin;
– Energielabel C;
– uniek gelegen zonnig perceel van 159 m2.

Lees de volledige omschrijving

Contact

Van Ee Makelaars

Kenmerken

Algemeen

Status
Verkocht
Aanvaarding
In overleg
Soort woonhuis
Eengezinswoning, tussenwoning
Soort bouw
Bestaande bouw
Bouwjaar
1972
Ligging
Aan bosrand, aan rustige weg, in bosrijke omgeving, in woonwijk

Oppervlakten en inhoud

Wonen
138 m²
Externe bergruimte
7 m²
Perceel
159 m²
Inhoud
467 m³

Indeling

Aantal kamers
6 kamers (5 slaapkamers)
Aantal badkamers
1 badkamer
Badkamervoorzieningen
Ligbad, toilet, wastafel
Aantal woonlagen
3

Energie

Energielabel
C
Verwarming
Cv ketel
Warm water
Cv ketel

Kadastrale gegevens

Perceelnaam
De Bilt E 3448
Oppervlakte
159 m²
Eigendomssituatie
Volle eigendom
Perceel
BIL01-E-3448

Buitenruimte

Tuin
Achtertuin, voortuin
Achtertuin
57 m²
Ligging tuin
Zuidwest
Bekijk alle kenmerken

Overige media